CASELLA - Viale Europa
€ 129.000
Genova
Dettagli
Contratto Vendita
Rif IMMO-123473545
Prezzo € 129.000
Provincia Genova
Comune Casella
Indirizzo Viale Europa 18">
Vani 3
Camere 2
Bagni 1
Classe energetica
F (DL 90/2013)
EPgl,nren 127,49 kwh/m2 anno
Riscaldamento autonomo
Condizioni ottime condizioni
Spese condominiali € 70
Anno di costruzione 1987
Cucina abitabile
Consistenze
| Descrizione | Superficie | Sup. comm. |
|---|---|---|
| Principali | ||
| Immobile - 2° piano | 110 Mq | 110 Mqc |
| Totale | 110 Mqc | |
Ci troviamo in una zona comoda e tranquilla a due passi dal centro di Casella.
Proponiamo un appartamento in palazzina ordinata con riscaldamento autonomo e basse spese di gestione.
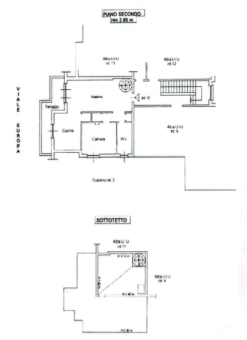
Di recente ristrutturazione, si presenta in ottimo stato e subito abitabile. Disposto su due livelli abitativi è così composto; ingresso su ampio salone con cucina abitabile a vista, camera da letto, bagno con box doccia e tre comode dispense. E' presente anche una balconata alla quale si accede da cucina e soggiorno. Al secondo piano, raggiungibile con scala a chiocciola dal soggiorno, troviamo la camera da letto matrimoniale, semimansardata e dotata di climatizzatore caldo/freddo. Da qui si accede inoltre all'ampio locale sottotetto ad uso ripostiglio. Tutti gli infissi sono nuovi in PVC con doppio vetro completi di zanzariere; la porta di ingresso è blindata.
Il riscaldamento autonomo è a metano, con calderina a condensazione posta sul balcone. I pavimenti sono in gres porcellanato con effetto legno. L'impianto elettrico è sfilabile.
A pochi passi si trovano negozi, supermercato, farmacia, scuole medie ed elementari, asilo, area verde con parco giochi, piscina e infine il trenino di Casella, che la collega con Genova.
Trovate il nostro video di presentazione, una vera visita virtuale dell'immobile, cliccando l'icona posta sotto le foto.
Proponiamo un appartamento in palazzina ordinata con riscaldamento autonomo e basse spese di gestione.
Di recente ristrutturazione, si presenta in ottimo stato e subito abitabile. Disposto su due livelli abitativi è così composto; ingresso su ampio salone con cucina abitabile a vista, camera da letto, bagno con box doccia e tre comode dispense. E' presente anche una balconata alla quale si accede da cucina e soggiorno. Al secondo piano, raggiungibile con scala a chiocciola dal soggiorno, troviamo la camera da letto matrimoniale, semimansardata e dotata di climatizzatore caldo/freddo. Da qui si accede inoltre all'ampio locale sottotetto ad uso ripostiglio. Tutti gli infissi sono nuovi in PVC con doppio vetro completi di zanzariere; la porta di ingresso è blindata.
Il riscaldamento autonomo è a metano, con calderina a condensazione posta sul balcone. I pavimenti sono in gres porcellanato con effetto legno. L'impianto elettrico è sfilabile.
A pochi passi si trovano negozi, supermercato, farmacia, scuole medie ed elementari, asilo, area verde con parco giochi, piscina e infine il trenino di Casella, che la collega con Genova.
Trovate il nostro video di presentazione, una vera visita virtuale dell'immobile, cliccando l'icona posta sotto le foto.
Video
Richiedi maggiori informazioni
Mappa
Zoom della mappa
Apri con:
Apple Maps
Google Maps
Waze
Contattaci
Soluzioni Immobiliari
via vittorio veneto, 94 16012 BUSALLA (GE)
via vittorio veneto, 94 16012 BUSALLA (GE)
C.F.: PDDPRR85H11D969Q
P.IVA: 02126260997
+390103020528





